Hala produkcyjna w Nowej Rudzie



  • Cena sprzedaży: 7 000 000 zł
  • Dodatkowe opłaty: –/mies.
  • Powierzchnia: 3500,00 m2
  • Pomieszczenia:
  • Kondygnacje:

Opis oferty

Stan techniczny: idealny
Rok budowy: 2007
Powierzchnie:
Działka: 8868 m2
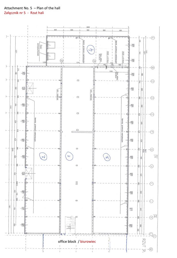
Hala: 3500 m2, w tym:
Hala prod.: 2500 m2
Biura: 550 m2
Część socjalna: 450 m2
Media: woda, kanalizacja, gaz, ogrzewanie, odwodnienie, monitoring, parking, plac manewrowy...
Elektryczność: 120 kV
MPZP: działka przeznaczona pod realizację przemysłu nieuciążliwego.

Hala przemysłowa zlokalizowana w Nowej Rudzie, 24-tysięcznym mieście położonym około 85 km od Wrocławia, 72 km od Autostrady A4 i 24 km od drogi krajowej numer 8.
Nieruchomość położona jest na terenie Wałbrzyskiej Specjalnej Strefy Ekonomicznej „INVEST-PARK” w Podstrefie Nowa Ruda.
Nabywca po otrzymaniu pozwolenia na działalność w Strefie będzie mógł korzystać z ulg podatkowych z tytułu poniesionych kosztów inwestycyjnych. Dla przedsiębiorstw małych, zatrudniających do 50 osób zwolnienia wynoszą 45%, dla firm średnich 35%, a dla dużych 25%.
Dodatkowo przedsiębiorstwo może skorzystać ze zwolnienia z podatku od nieruchomości (pomoc De Minimis, udzielana przez Gminę Miejską Nowa Ruda).

Na nieruchomość składają się 3 działki o łącznej powierzchni 8868 m2.
Działka nr 98/15 o powierzchni 0,2749 ha, nieruchomość jest własnością ZPAS S.A.;
Działka nr 98/24 o powierzchni 0,0478 ha, nieruchomość jest własnością ZPAS S.A.;
Działka nr: 98/23 o powierzchni 0,1286 ha i działka nr 103/5 o powierzchni 0,4355 ha, do, których ZPAS S.A. posiada prawo użytkowania wieczystego;

Cały teren jest ogrodzony i monitorowany. Na część biurową składają sie przestronne biura, recepcja i sala konferencyjna. Część socjalna to szatnie pracownicze, toalety oraz stołówka. Hala produkcyjna składa się z trzech części oraz magazynu z dwoma dokami przeładunkowymi.
Funkcjonalność obiektu oraz jego pełne wyposażenie w media pozwolą na rozpoczęcie prowadzenia każdej działalności praktycznie "od zaraz".
Więcej informacji pod adresem: hala.zpas.com

Możliwości rozwoju:

Firma ZPAS S.A. w wyniku dynamicznego rozwoju dla potencjalnego nabywcy zleci kooperację.

Podobne oferty

globalbroker.biz

SprzedamBiznes.pl jest internetową platformą profesjonalnych ofert biznesowych, działającą na krajowym rynku począwszy od 2011 roku.

Operatorem serwisu jest firma
Skytech IT Sp. z o.o. w Krakowie.

Kontakt z nami

Skytech IT Sp. z o.o.
ul. Przemysłowa 12/hubraum
30-701 Kraków