Działka inwestycyjna nad morzem



  • Cena sprzedaży: 3 900 000 zł
  • Dodatkowe opłaty: 0 zł/mies.
  • Powierzchnia: 1178,00 m2
  • Pomieszczenia: 9
  • Kondygnacje: 1

Opis oferty

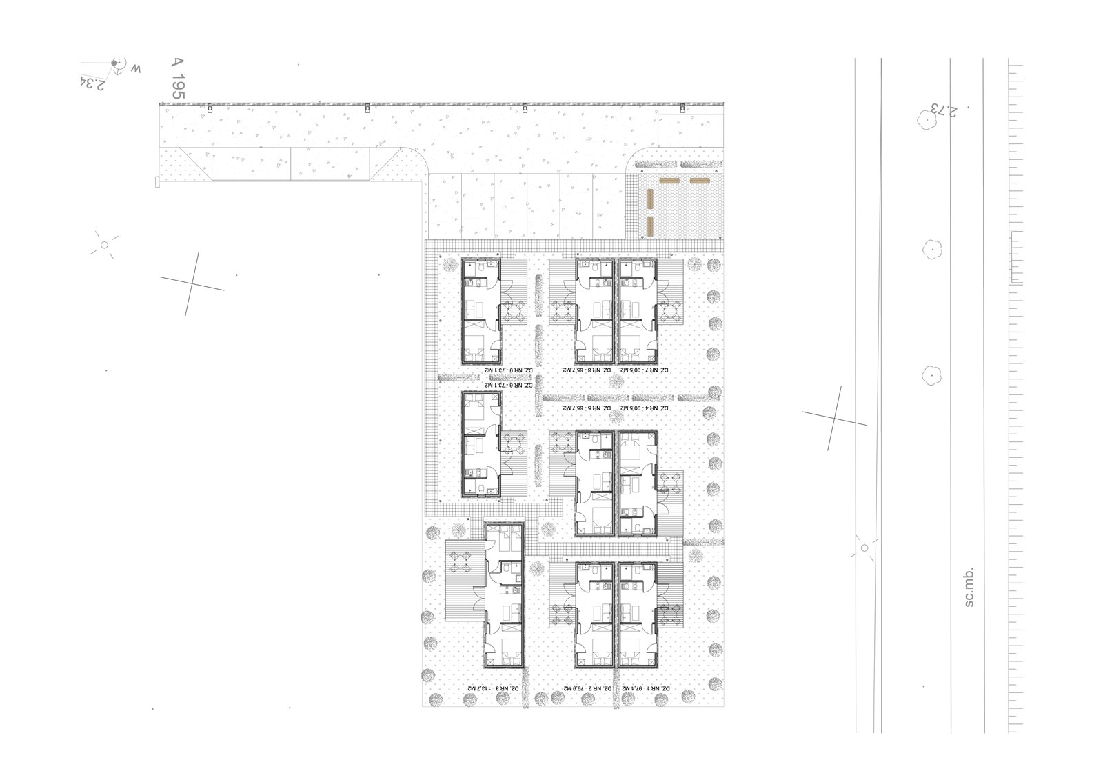
Sprzedam działkę inwestycyjną "Amber Park Wrzosowo" 1178 m2 nr 224/86 z aktywnym Pozwoleniem na Budowę osiedla 9 domków całorocznych wraz z niezbędną infrastrukturą techniczną, placem zabaw oraz parkingiem w miejscowości: WRZOSOWO 196; KAMIEŃ POMORSKI 72-400 (działka leży przy głównej drodze do miejscowości Dziwnówek - 2 km od morza oraz 100 m od Zatoki Wrzosowskiej w woj. zachodniopomorskim)
Stan prawny — bez hipoteki

Stan projektowy:
Prawomocne pozwolenie na budowę,
Zarejestrowany dziennik budowy.

Materiały projektowe:
Projekt budowlany, projekt techniczny, projekt wykonawczy.

Zakończony etap I.
Zakres:
- zakończone instalacje w ziemi (woda, kanalizacja, instalacje elektryczne, niskoprądowe)
- zakończone przyłącze elektryczne, wodne, oraz instalacje wewnętrzne wraz z dedykowaną rozdzielnią elektryczną
- zakończone fundamenty dla wszystkich domków - 9 szt.
- zakończone słupy elektryczne wraz z oświetleniem,
- zakończona instalacja CCTV - wraz z dostępem zdalnym do monitoringu.
- postawione 3 domki zgodne z projektem

Link do filmu inwestycji:
[dane ukryte]

Cena sprzedaży inwestycji w etapie I - 3 900 000 netto
Cena sprzedaży całej inwestycji - 4 900 000 netto

Podobne oferty

globalbroker.biz

SprzedamBiznes.pl jest internetową platformą profesjonalnych ofert biznesowych, działającą na krajowym rynku począwszy od 2011 roku.

Operatorem serwisu jest firma
Skytech IT Sp. z o.o. w Krakowie.

Kontakt z nami

Skytech IT Sp. z o.o.
ul. Przemysłowa 12/hubraum
30-701 Kraków