Dom Seniora



  • Cena sprzedaży: 2 400 000 zł
  • Dodatkowe opłaty: –/mies.
  • Powierzchnia: 2850,00 m2
  • Pomieszczenia:
  • Kondygnacje: 1

Opis oferty

Idealne miejsce na Dom Seniora lub lokale mieszkalne. Obiekt piętrowy o powierzchni 2850m² na działce 12000m², otoczony lasami sprzedam, wydzierżawię lub inne propozycje. Dobry dojazd zaledwie 5km od granic Torunia. Posiadam wstępny projekt domu seniora na 60 pokoi jedno i dwu osobowych z pełnym zapleczem - kuchnia, jadalnia, gabinety lekarskie, pomieszczenia techniczno-socjalne itd. ( według poniższej specyfikacji). Zgodnie z planem zagospodarowania przestrzennego tereny przeznaczone są do zabudowy mieszkalnej wielorodzinnej oraz budynków zamieszkania zbiorowego.
Inwestorów, deweloperów zapraszamy do kontaktu.

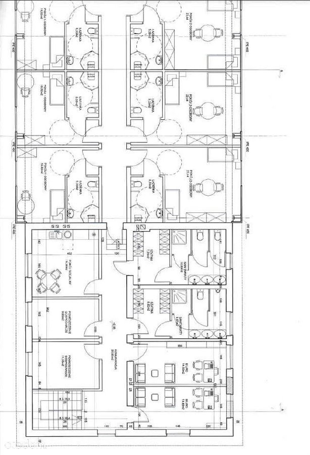
PARTER

1. Pokój 2 osobowy o powierzchni 21.14m² - 12szt.
2. Pokój dzienny + aneks kuchenny + sypialnia + łazienka o powierzchni 43m² - 4szt.
3. Pokój socjalny
4. Pomieszczenie teleinformatyczne
5. Recepcja 104.76m²
6. Kuchnia 129.61m²
7. Dyżurka pierwszego kontaktu
8. Gabinety lekarskie
9. Sale rehabilitacyjne 54.81m²
10. Pokoje zabiegowe 2szt.
11. Pokój pobytu dziennego 103m²
12. Kaplica 54.80m²
13. Schody + winda

PIĘTRO

1. Biura
2. Dyżurka pierwszego kontaktu
3. Pomieszczenia gospodarcze
4. Sanitariaty, szatnie
5. Pokój socjalny 16.36m²
6. Pokój 2 osobowy 21,14m² - 20szt.
7. Pokój 2 osobowy 28.77m² - 12szt.
8. Pokój 1 osobowy 21.39m² - 10szt.
9. Pomieszczenia porządkowe - 3szt.
10. Winda + schody

Podobne oferty

globalbroker.biz

SprzedamBiznes.pl jest internetową platformą profesjonalnych ofert biznesowych, działającą na krajowym rynku począwszy od 2011 roku.

Operatorem serwisu jest firma
Skytech IT Sp. z o.o. w Krakowie.

Kontakt z nami

Skytech IT Sp. z o.o.
ul. Przemysłowa 12/hubraum
30-701 Kraków