Nieruchomość wraz z gruntem pod Buskiem z domem weselnym



  • Cena sprzedaży: 6 800 000 zł
  • Dodatkowe opłaty: –/mies.
  • Powierzchnia: 1030,00 m2
  • Pomieszczenia: 32
  • Kondygnacje: 3

Opis oferty

Atrakcyjna nieruchomość wraz z gruntem pod Buskiem. Dom weselny z terenem umożliwiającym dalszą rozbudowę inwestycji.

LOKALIZACJA I KOMUNIKACJA:

DOM WESELNY
Dom weselny Verona to jeden z najpopularniejszych domów weselnych w powiecie buskim. Swoją działalność rozpoczął ponad 15 lat temu, a najlepszym świadectwem jakości i usług na najwyższym poziomie są tysiące gości, którzy odwiedzili nasz obiekt. Wielkim atutem jest również możliwość udzielenia ślubów w plenerze na terenie inwestycji.

Nieruchomość zlokalizowana jest w powiecie buskim (Mikułowice 109) w województwie świętokrzyskim około 5 km od centrum miasta Busko-Zdrój. Bezpośrednia lokalizacja obiektu przy drodze krajowej nr 73 (Tarnów-Busko-Kielce) umożliwia łatwy i szybki dostęp do obiektu. Dojazd od strony Kielc zajmuje około 1h. Nieruchomość położona jest w obrębie Szanieckiego Parku Krajobrazowego. Wjazd na teren nieruchomości zlokalizowany jest bezpośrednio od strony drogi krajowej (zjazd z obu kierunków drogi). Od frontu znajduje się duży parking na około 40 aut, zadaszony podjazd pod główne, reprezentacyjne wejście oraz wejście techniczne (gospodarcze) zlokalizowane zarówno od strony południowej, jak i północnej budynku. Od strony północnej na działce nr 158/13 znajduje się staw (zarybiony) z zagajnikiem idealnym pod teren rekreacyjny.

OPIS NIERUCHOMOŚCI

1. BUDYNEK GŁÓWNY
Nieruchomość objęta ofertą położona jest na trzech sąsiadujących ze sobą działkach budowlanych.
Powierzchnia działki z budynkiem 158/32 – 0,604 ha
Powierzchnia działki 158/31 –0,506 ha
Powierzchnia działki 158/13 -0,2315 ha
Całość = 1,4256 ha

Od ponad 15 lat prowadzona jest dobrze prosperująca działalność gospodarcza o charakterze usługowym (centrum bankietowe Verona). Dom weselny posiada dwie sale bankietowe o łącznej powierzchni ponad 400 m2 (max. 200 osób) salę barową, dwa niezależne węzły sanitarne (damskie i męskie), toaletę dla osób niepełnosprawnych (toaleta matki z dzieckiem). Bezpośrednio przy sali zlokalizowany jest zewnętrzny taras. Obiekt wyposażony w gastronomiczną kuchnię, chłodnie, zmywalnie oraz pomieszczenia pomocnicze jak pralnia i magazyny. Na piętrze znajdują się pokoje gościnne (5 apartamentów) z węzłami sanitarnymi. Na najwyższej kondygnacji do zaaranżowania jest powierzchnia około 200 m2 pod kolejne apartamenty. Całkowita powierzchnia użytkowa budynku wynosi około 810 m2. W 2015 roku budynek został rozbudowany od wschodu o mniejszą salę bankietową na około 40 osób wraz z odrębnym węzłem sanitarnym.

2.BUDYNKI MAGAZYNOWE
Na działce 158/32 zlokalizowany jest budynek magazynowy w konstrukcji stalowej o powierzchni około 300 m2, w której znajduje się również kotłownia i skład opału z pomieszczeniem technicznym.

3.INFRASTRUKTURA TECHNICZNA
Obiekty wyposażone są w instalacje:
1) sieć wodociągowa,
2) sieć kanalizacji sanitarnej i deszczowej,
3) instalację zewnętrzną i wewnętrzną przeciwpożarową (hydrant zewnętrzny),
4) kotłownia na paliwo stałe (ekogroszek),
5) pompa ciepła,
6) klimatyzacja i wentylacja mechaniczna (sala bankietowa i pokoje gościnne),
7) instalacja fotowoltaiczna, łącznie około 55 kWh.

4.PERSPEKTYWA I MOŻLIWOŚCI ROZWOJU INWESTYCJI
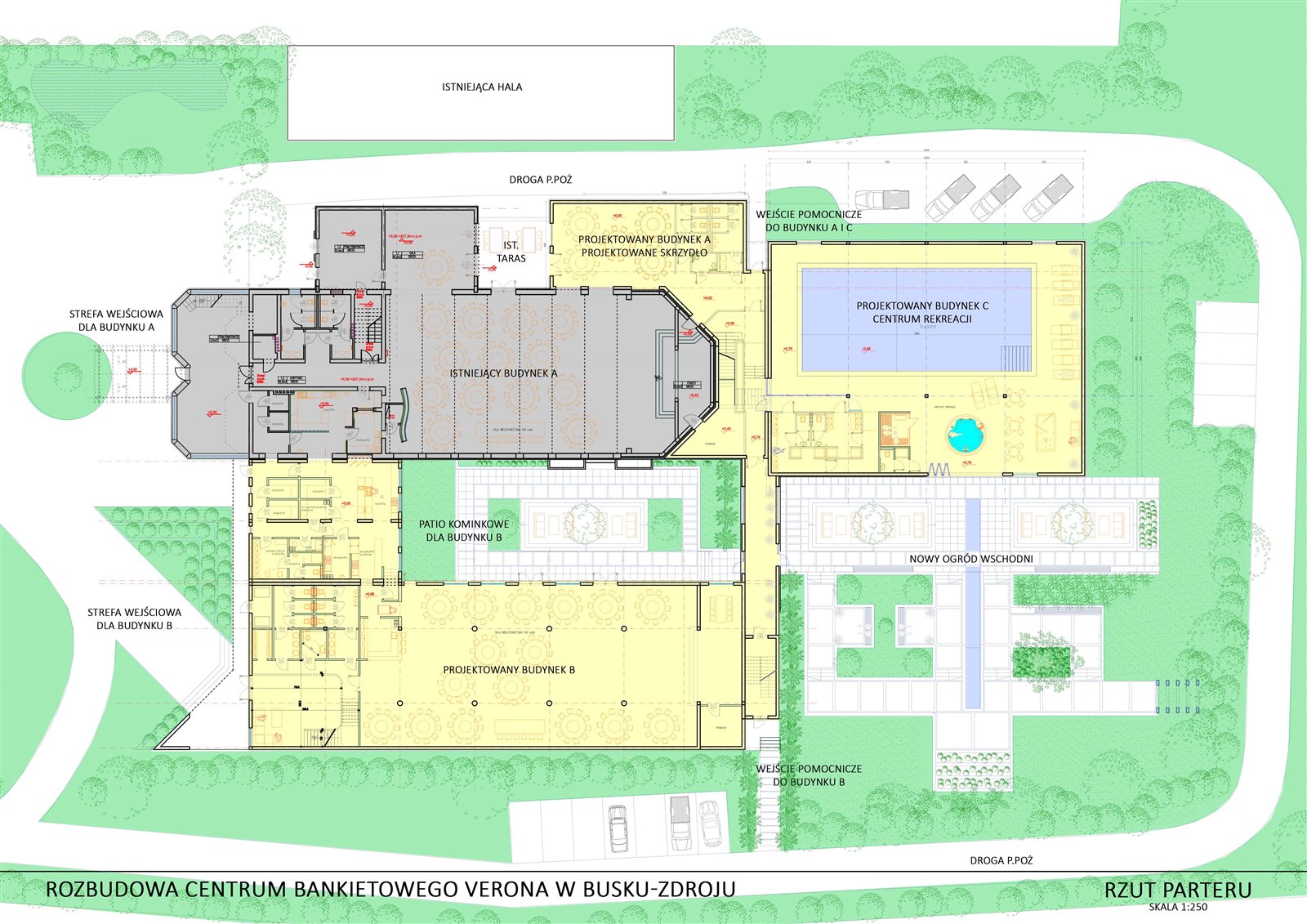
W 2020 roku wykonano koncepcję architektoniczną rozbudowy Centrum Bankietowego "Verona" o dodatkowy, funkcjonujący niezależnie budynek z salą bankietową na dodatkowe 200 osób, wraz z częścią hotelową i salami konferencyjnymi na piętrze. Pomiędzy budynkami zaprojektowano patio kominkowe, a od wschodu nowy ogród przylega bezpośrednio do nowo zaprojektowanego budynku Centrum Rekreacji. W budynku od strony wschodniej (Centrum Rekreacji) zaprojektowany został basen (istniejąca niecka basenu), sauny, salę bilardową oraz jacuzzi. Rozbudowa została zaprojektowana w taki sposób, aby umożliwić organizację dwóch odrębnych imprez okolicznościowych jednocześnie bez kolizji gości, wykorzystując przy tym rozbudowaną kuchnię z zapleczem. Istnieje możliwość wykonania pełnej dokumentacji Projektu Budowlanego wraz z uzyskaniem pozwolenia na budowę. Koncepcja rozbudowy pokazana została w cześć graficznej ogłoszenia.

Oferta dotyczy sprzedaży wszystkich trzech działek z możliwością negocjacji. Oferta bez pośredników.

Podobne oferty

globalbroker.biz

SprzedamBiznes.pl jest internetową platformą profesjonalnych ofert biznesowych, działającą na krajowym rynku począwszy od 2011 roku.

Operatorem serwisu jest firma
Skytech IT Sp. z o.o. w Krakowie.

Kontakt z nami

Skytech IT Sp. z o.o.
ul. Przemysłowa 12/hubraum
30-701 Kraków