Na sprzedaż działka z PnB, Skrzypnik g. Domaniów



  • Cena sprzedaży: 1 550 000 zł
  • Dodatkowe opłaty: –/mies.
  • Powierzchnia: 12118,00 m2
  • Pomieszczenia:
  • Kondygnacje:

Opis oferty

W ofercie sprzedaży działka o pow. 12 118m2 z wydanym pozwoleniem na budowę na cześci działki o pow. około 3100m2.

PnB gotowe wydane na budowę 6 domów w zabudowie bliźniaczej połączone garażem. Duże ogrody około 400m2 do każdego segmentu. Prywatna droga wewnętrzna na osiedle.
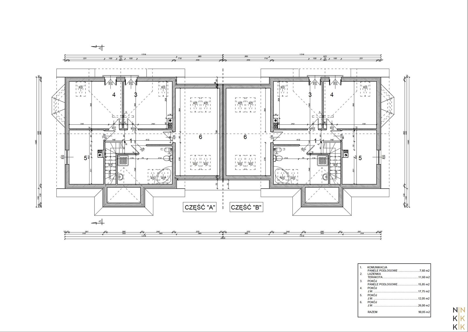
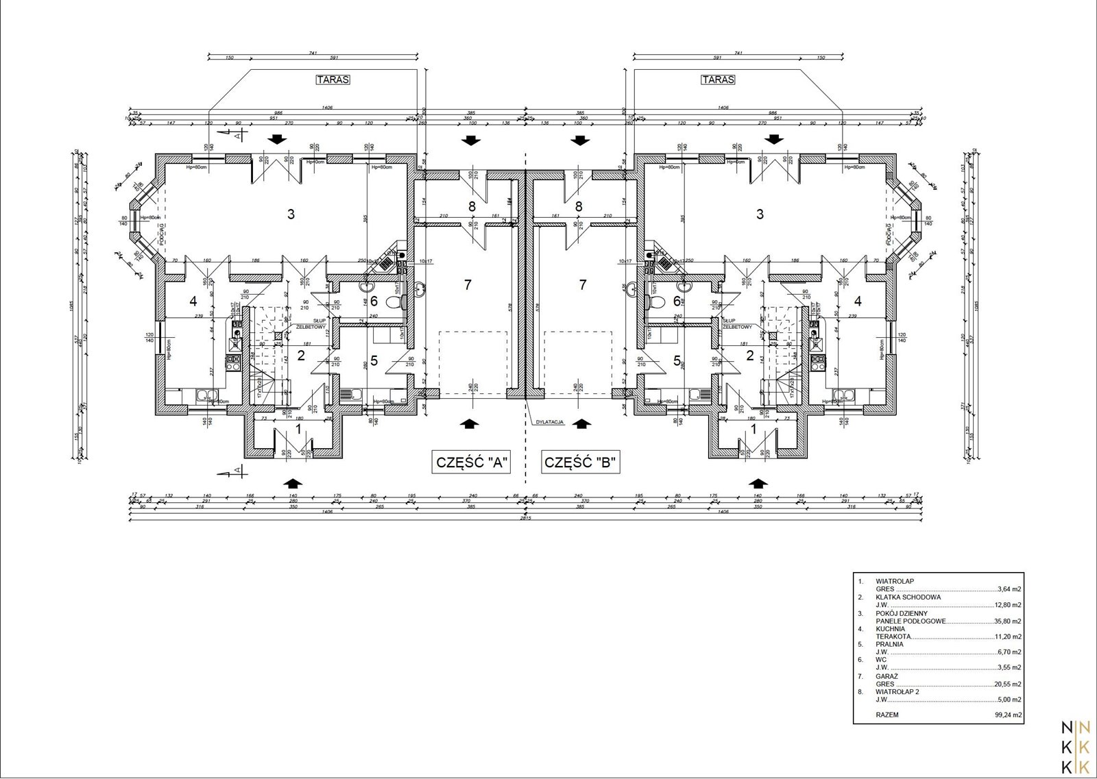
Domy dwukondygnacyjne z poddaszem nieużytkowym o pow. użytkowej 190m2 w tym jednostanowiskowy garaż w bryle budynku o pow. 20m2.
Media: woda, prąd, kanalizacja- szambo.

Doskonały rozkład projektowanych domów:
- parter: przestronny pokój dzienny (36m2), oddzielna kuchnia z oknem (11m2), WC, pralnia, garaż oraz komunikacja,
- piętro: cztery sypialnie (16m2, 18m2, 12m2, 26m2), łazienka (11m2), komunikacja,
- podasz nieużytkowe - do wykorzystania jako dodatkowa przestrzeń do składowania.

Koncepcja obejmuje zabudowę w całej działki czyli łącznie 12 budynków w zabudowie bliźniaczej czyli 24 segmenty.
Każdy segment o pow. użytkowej około 190m2 czyli łącznie do wybudowania 4560m2 powierzchni użytkowej domów. Piękne duże działki do każdego segmentu po około 400m2 każda.

Zapraszam do kontaktu.
Karolina Kłosińska T: +48 601 884 048

Podobne oferty

globalbroker.biz

SprzedamBiznes.pl jest internetową platformą profesjonalnych ofert biznesowych, działającą na krajowym rynku począwszy od 2011 roku.

Operatorem serwisu jest firma
Skytech IT Sp. z o.o. w Krakowie.

Kontakt z nami

Skytech IT Sp. z o.o.
ul. Przemysłowa 12/hubraum
30-701 Kraków