Na sprzedaż działka przemysłowa z PnB hala magazmowo- biurowa, Siechnice



  • Cena sprzedaży: 3 518 970 zł
  • Dodatkowe opłaty: –/mies.
  • Powierzchnia: 9023,00 m2
  • Pomieszczenia:
  • Kondygnacje:

Opis oferty

Na sprzedaż: działka przemysłowo–usługowa o powierzchni 9 023 m² z pozwoleniem na budowę – w Siechnicach, g. Siechnice, pow. wrocławski.
W odległości około 400m bezpośredni zjazd z Wschodniej Obwodnicy Wrocławia.

Oferuję na sprzedaż atrakcyjną działkę inwestycyjną o powierzchni 9 023 m², zlokalizowaną na terenie objętym planem zagospodarowania przestrzennego o symbolu 1U/P – tereny obiektów produkcyjnych, składów, magazynów i zabudowy usługowej.


Najważniejsze atuty nieruchomości:


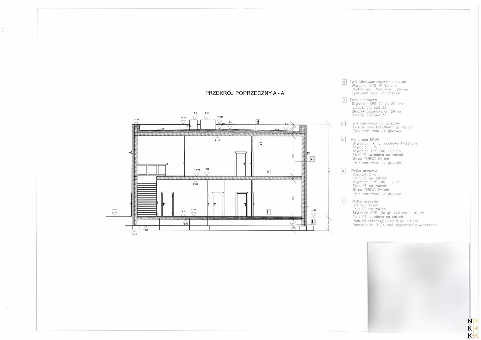
Wydane pozwolenie na budowę budynku biurowo - magazynowego jednokondygnacyjnego w części biurowej dwukondygnacyjnego wraz z utwardzeniem dojścia i objazdów, parkingiem i oświetleniem zewnętrznym.


Łączna powierzchnia projektowanego budynku 837m2:


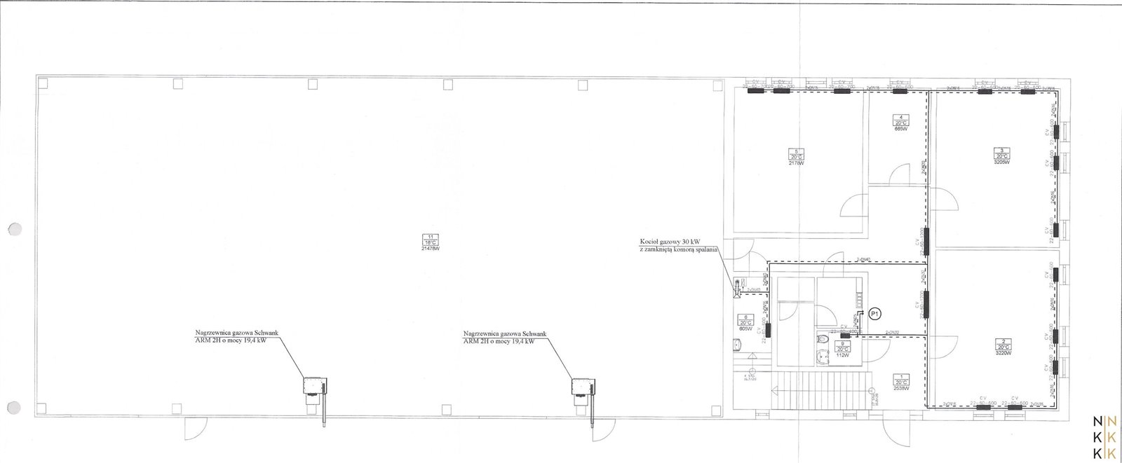
Hala magazynowa: 463 m²


Część biurowa parter: 188 m²


Część biurowa I piętro: 186 m²


Parametry budynku:


Powierzchnia zabudowy parteru: 15,4 m szerokości × 46 m długości


Wysokość hali: 8,11 m
Media: ogrzewanie gazowe, woda miejska, kanalizacja zbiorniki bezodpływowe, kanalizacja deszczowa wraz ze studniami szczelnymi i zbiornikiem szczelnym oraz separatorem substancji ropopochodnych.


Przeznaczenie działki (MPZP – symbol 1U/P):


obiekty produkcyjne,


składy i magazyny,


zabudowa usługowa.

Działka idealna dla inwestora lub firmy poszukującej miejsca na realizację własnego obiektu biurowo–magazynowego z możliwością dalszej rozbudowy zgodnie z zapisami MPZP.

W celu uzyskania dodatkowych informacji zapraszam do kontaktu.
Karolina Kłosińska
Tel. +48 601 884 048

Podobne oferty

globalbroker.biz

SprzedamBiznes.pl jest internetową platformą profesjonalnych ofert biznesowych, działającą na krajowym rynku począwszy od 2011 roku.

Operatorem serwisu jest firma
Skytech IT Sp. z o.o. w Krakowie.

Kontakt z nami

Skytech IT Sp. z o.o.
ul. Przemysłowa 12/hubraum
30-701 Kraków