Inwestycja na sprzedaż - PUCK



  • Cena: 3 299 000 zł
  • Przychody:
  • Dochody:
  • Rok założenia:
  • Liczba pracowników:
  • Charakter działalności:
    • ▪ Usługi
  • Zakres sprzedaży:
    • ▪ Całość firmy

Opis oferty

Hale z najemcami / Przemysł / Pod siedzibę firmy / Produkcja / Transport / Magazyny / możliwość dalszej rozbudowy i zwiększenia zysku

Doskonała nieruchomość pod siedzibę firmy, bądź czerpania korzyści z dochodu pasywnego - rentowność inwestycji na poziomie 10 procent

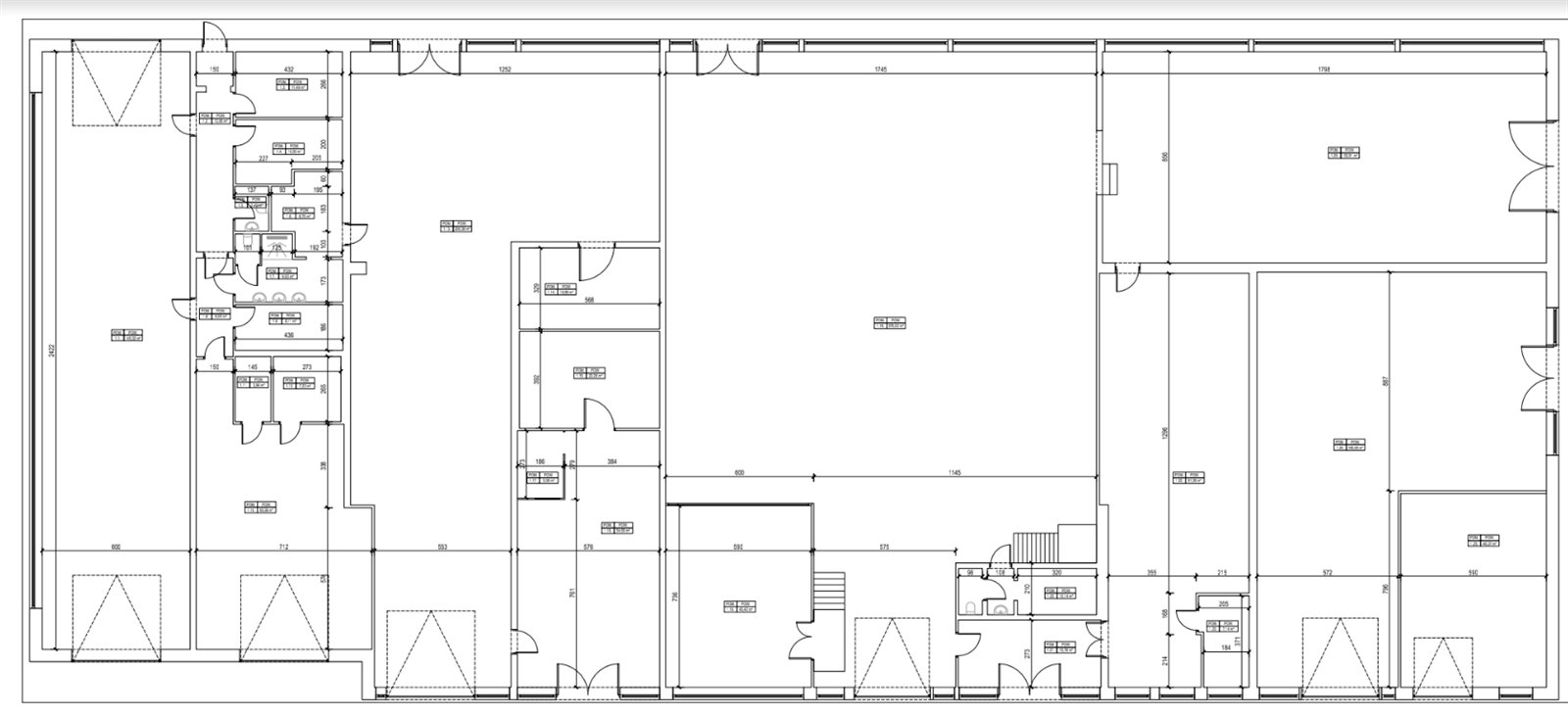
Mam przyjemność zaprezentować ofertę sprzedaży hali handlowo produkcyjnej o powierzchni 1491,27 metrów kwadratowych znajdującej się na działce o numerze 3/81 o powierzchni 0.6442 ha w dzielnicy przemysłowej w Pucku

Działka na której znajduje się hala posiada wykupione prawo użytkowania wieczystego do 2089 r. co zapewnia bezpieczeństwo inwestycji na długie lata.

Dojazd do hali jest zapewnione przez działkę 3/10, a dostęp do drogi publicznej jest bezproblemowy.

Hala została zbudowana z materiałów wysokiej jakości jest w dobrym stanie technicznym. Wewnątrz hali znajdują się pomieszczenia, które obecnie są wynajmowane pod różnego rodzaju usługi (z możliwością przejęcia wynajmujących) co może stanowić dodatkowe źródło dochodu dla przyszłego właściciela.

W skład zespołu hal wchodzą pomieszczenia użytkowe o zróżnicowanych metrażach między innymi:

5 pomieszczeń o dużych powierzchniach plus pomieszczenia techniczne oraz sanitarne
Hala 1 - 154,42 m2 (Aktualnie - Stacja Kontroli Pojazdów spełniająca wymogi pod tego typu działalność)
Hala 2 - 206,38 m2
Hala 3 - 376,32 m2
Hala 4 - 153,91 m2
Hala 5 - 149,49 m2
Hala 6 - 91,25 m2

3 pomieszczenia o mniejszym metrażu plus pomieszczenia techniczne oraz sanitarne
46,37 m2, 43,42 m2, 54,55 m2

Ze względu na swoją lokalizację Hale są doskonałym wyborem dla przedsiębiorców poszukujących przestrzeni do prowadzenia swojej działalności. Nieruchomość ta ma także duży potencjał rozwojowy dzięki czemu może stać się atrakcyjnym elementem portfela inwestycyjnego

Lokalizacja: PUCK
48 min do trasy S6,
45 min do portu w Gdyni
Tereny przemysłowe,
Rejon firm produkcyjnych, magazynowych, usługowych

Zapraszam do kontaktu w celu uzyskania dodatkowych informacji oraz na spotkanie podczas którego będziemy mogli omówić szczegóły oferty i przedstawić wszystkie zalety tej nieruchomości.




0% prowizji dla Kupującego

Kontakt w sprawie oferty

Magda Klecha- Patok [dane ukryte]

Niniejsze ogłoszenie jest informacją handlową i nie może być uznawane za ofertę handlową w rozumieniu art. 66 Kodeksu Cywilnego.


Nieruchomości i urządzenia


Wsparcie posprzedażowe


Powód sprzedaży

Podobne oferty

globalbroker.biz

SprzedamBiznes.pl jest internetową platformą profesjonalnych ofert biznesowych, działającą na krajowym rynku począwszy od 2011 roku.

Operatorem serwisu jest firma
Skytech IT Sp. z o.o. w Krakowie.

Kontakt z nami

Skytech IT Sp. z o.o.
ul. Przemysłowa 12/hubraum
30-701 Kraków